Introducing "Hidden Pond Accessory Dwelling Unit”

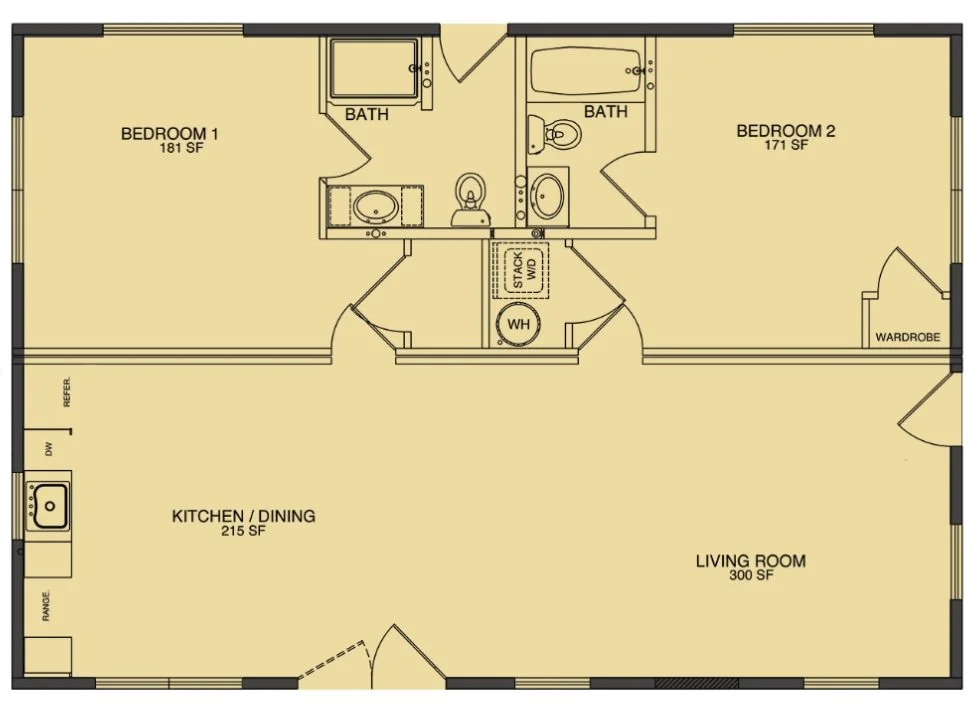
The Hidden Pond plan showcases a thoughtfully designed open area that seamlessly combines the living, dining, and kitchen spaces, maximizing the efficiency of the compact layout. The home features two bedrooms, each complemented by a full bathroom for additional privacy and convenience. Notably, one of the bathrooms includes an exterior entrance, allowing easy access from the yard, making it a practical addition for enjoying the outdoors without tracking it inside.

Square Footage: 675 sq ft
Bedrooms: 2
Bathrooms: 2
Levels: 1